Zum Inhalt springen
Casa Giardino
Tierloch, 8197 Rafz
Menü
Startseite
Grundrisse
Preise
Infrastruktur Rafz
Kontakt
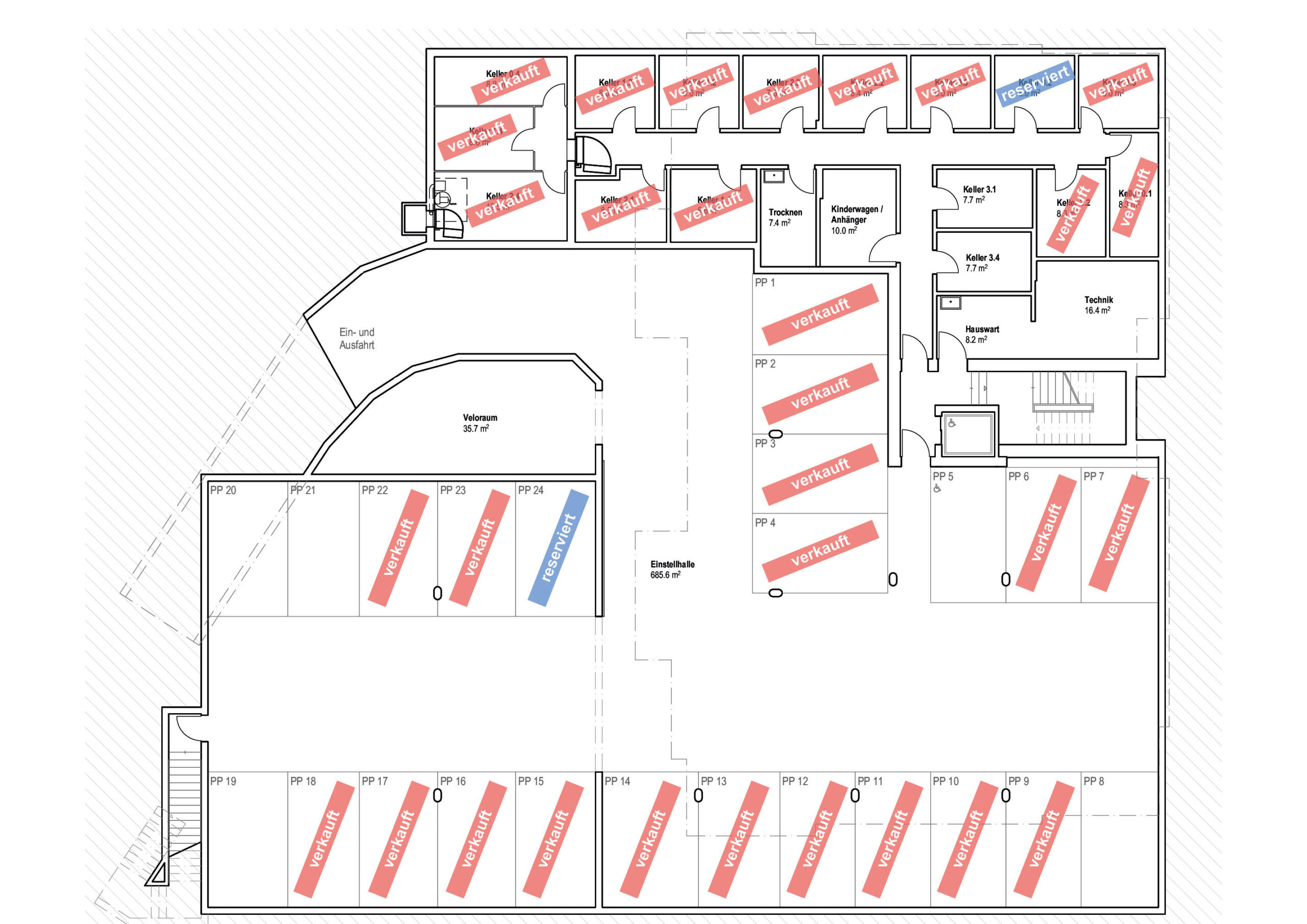
Untergeschoss
DOWNLOAD