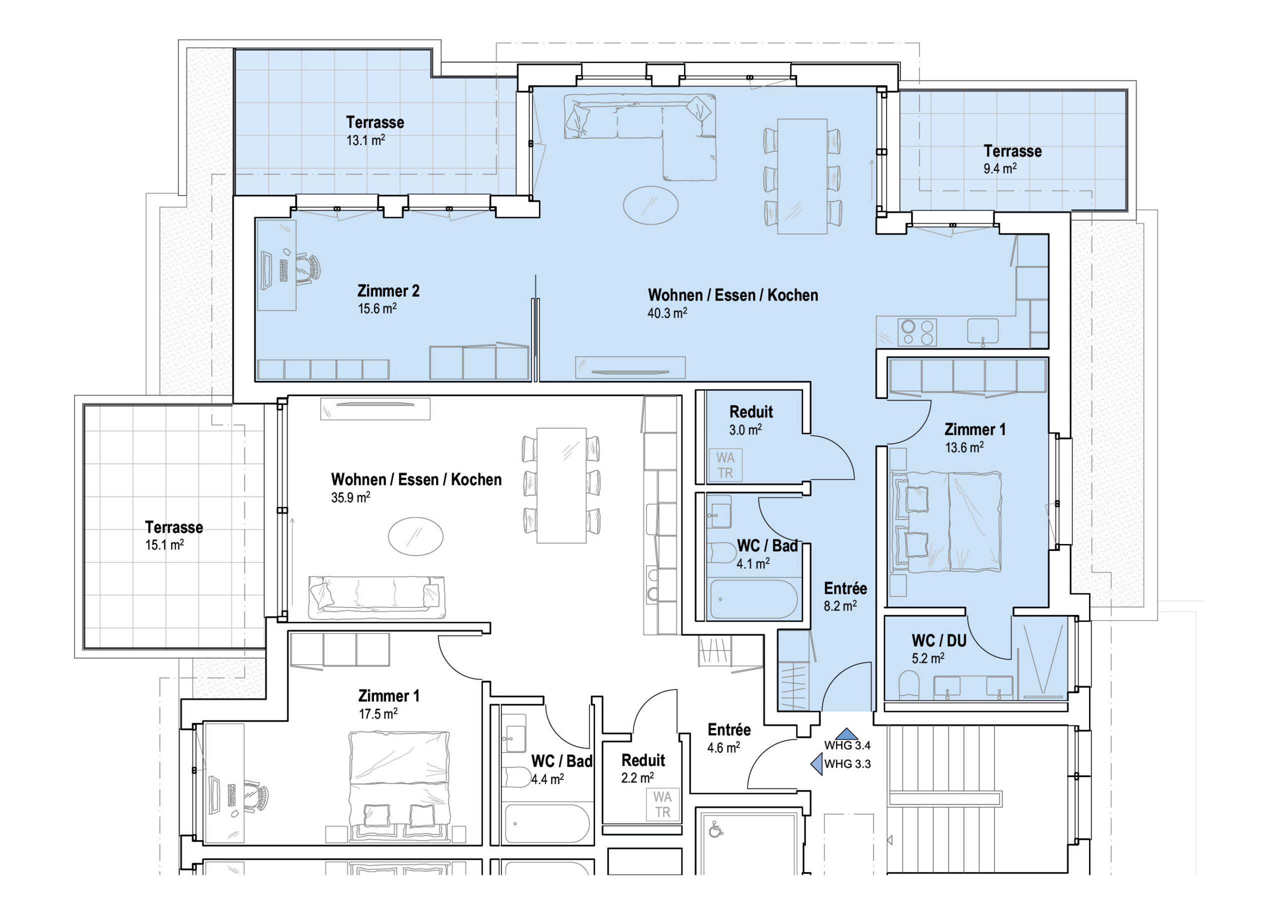
Wohnung 3.4 | Attika

DOWNLOAD

Entrée8.2 m²
Reduit3.2 m²
Wohnen | Essen | Kochen40.3 m²
WC / Bad4.1 m²
WC / DU5.2 m²
Zimmer 113.7 m²
Zimmer 215.6 m²
Total Bruttowohnfläche95.2 m²
Total Nettowohnfläche*90.0 m²
Terrasse13.1 m²
Terrasse9.4 m²
Keller 7.7 m²
*Aussen- und Innenwände nicht mitgerechnet

Kaufpreis Wohnung 3.4

Wohnung: CHF 895’000.-
Tiefgaragenparkplatz: CHF 38’000.-

Alle Preise inkl. MwSt.